- Name
- Thurston County Superior Courthouse Relocation
- Location
- Olympia, Washington
- Type And Sector
- CIVIC – JUDICIAL ARCHITECTURE, Courthouse
- Scope
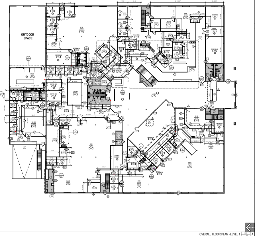
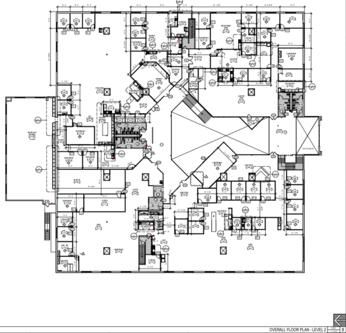
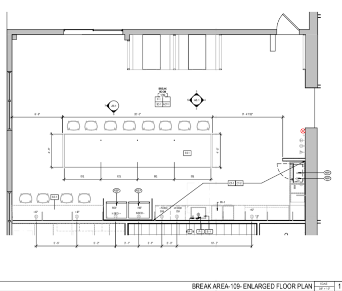
- To relocate tenants currently located in 2000 Lakeridge Dr. S.W. Bldg #1 to a leased facility located at 3000 Pacific Ave. Olympia, WA. All furniture, fixtures and Equipment (FFE) will be purchased new for this relocation. Scope of work will be to provide and install, to owner’s satisfaction all FFE listed in inventory and as per design and configuration documents.
- Size
- 90,804 SF, Two-story Building
- Kick Off Date
- 03/29/2022
- Completion Date
- 01/10/2023
- Challenges
- The budget changed during the design process.














