- Name
- Westcliff University, Western State College of Law
- Location
- Tunstin, California
- Type and Sector
- INSTITUTIONAL – EDUCATIONAL ARCHITECTURE, Universities and Colleges
- Scope
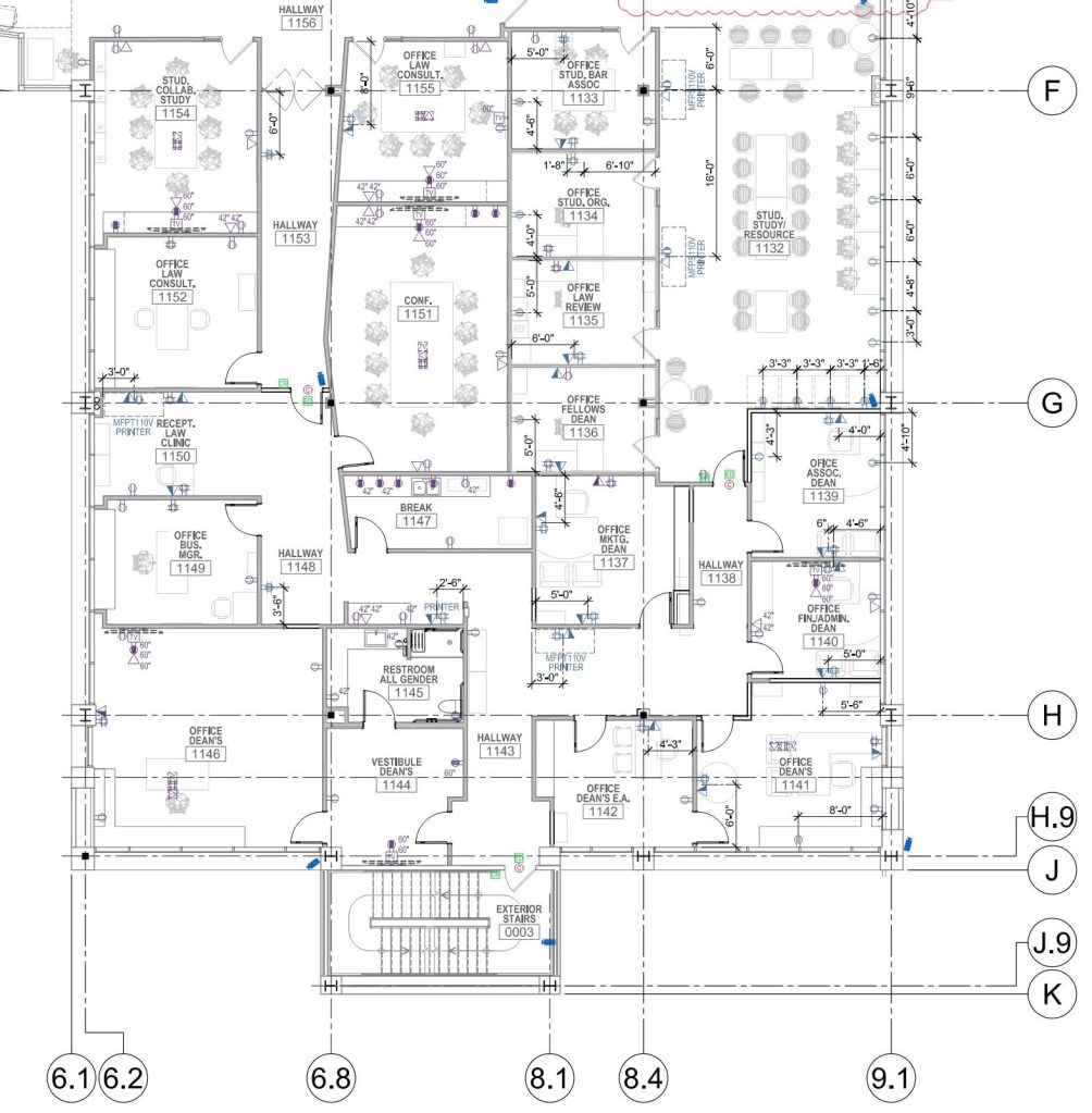
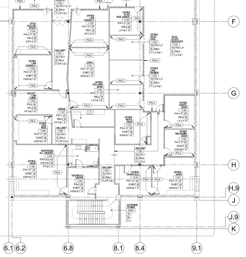
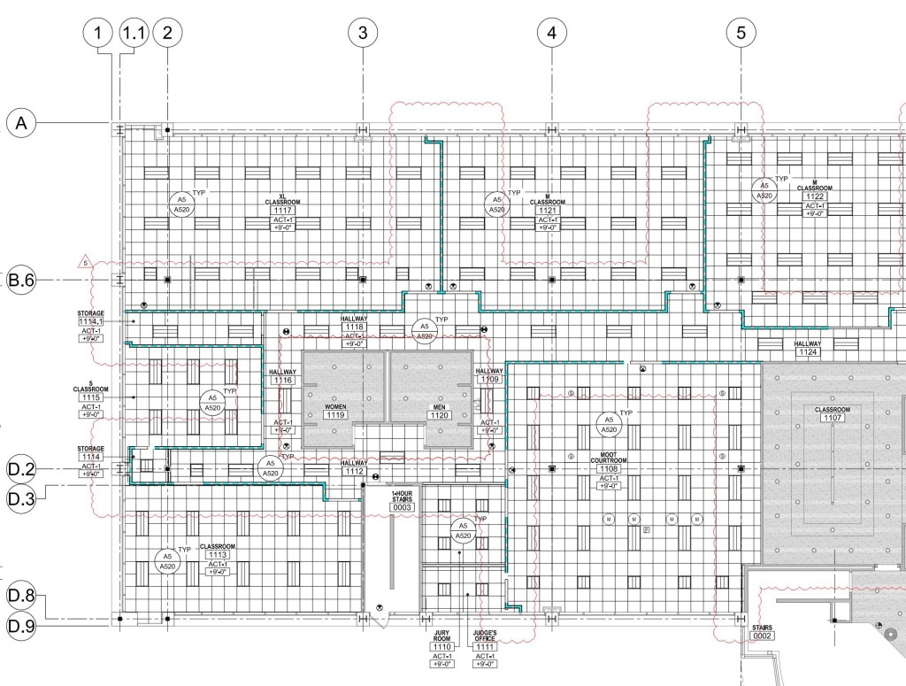
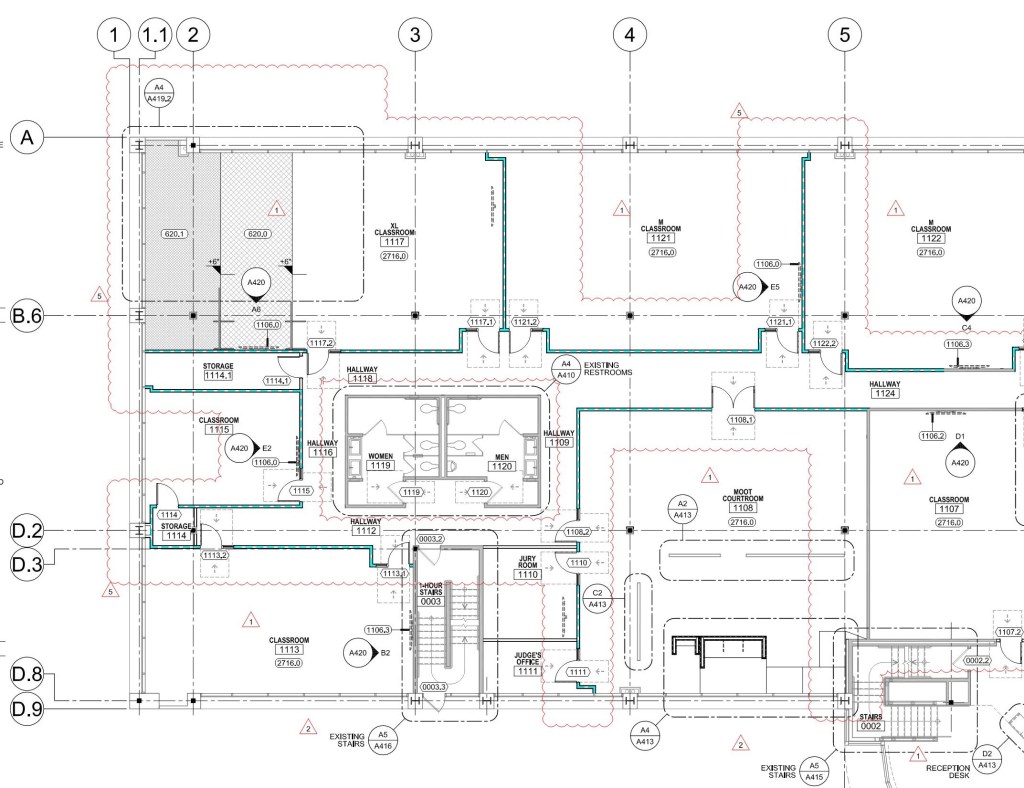
- Tenant improvements of existing 50,686 SF two story building with a partial subterranean parking garage. All classrooms will be occupied by Western State College of Law at Westcliff University. Core restrooms, elevator, and utilities shall remain. New offices and classrooms will be designed. No tenant improvements to existing garage or existing exterior. Relocating the school from two campuses, one on Von Karman Avenue and one on Temescal Canyon Road to the new Red Hill Avenue Campus location.
- Size
- 50,686 SF, Two-story Building
- Kick Off Date
- 06/12/2024
- Completion Date
- 09/02/2025
- Challenges
- Fitting all of the resources from two campuses into this structure. Additionally, both school populations also need to fit into this school.

















