- Name
- Single Family Home- Interior Remodel
- Location
- San Jose, California
- Type and Sector
- RESIDENTIAL ARCHITECTURE, Single Family Home
- Scope
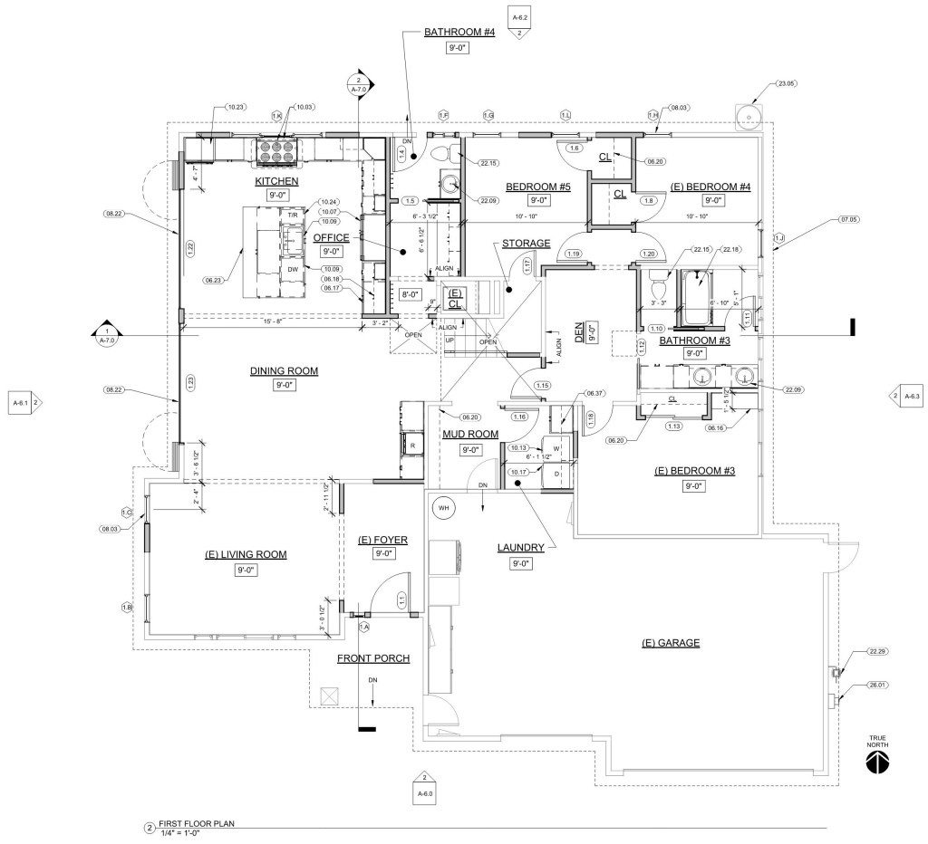
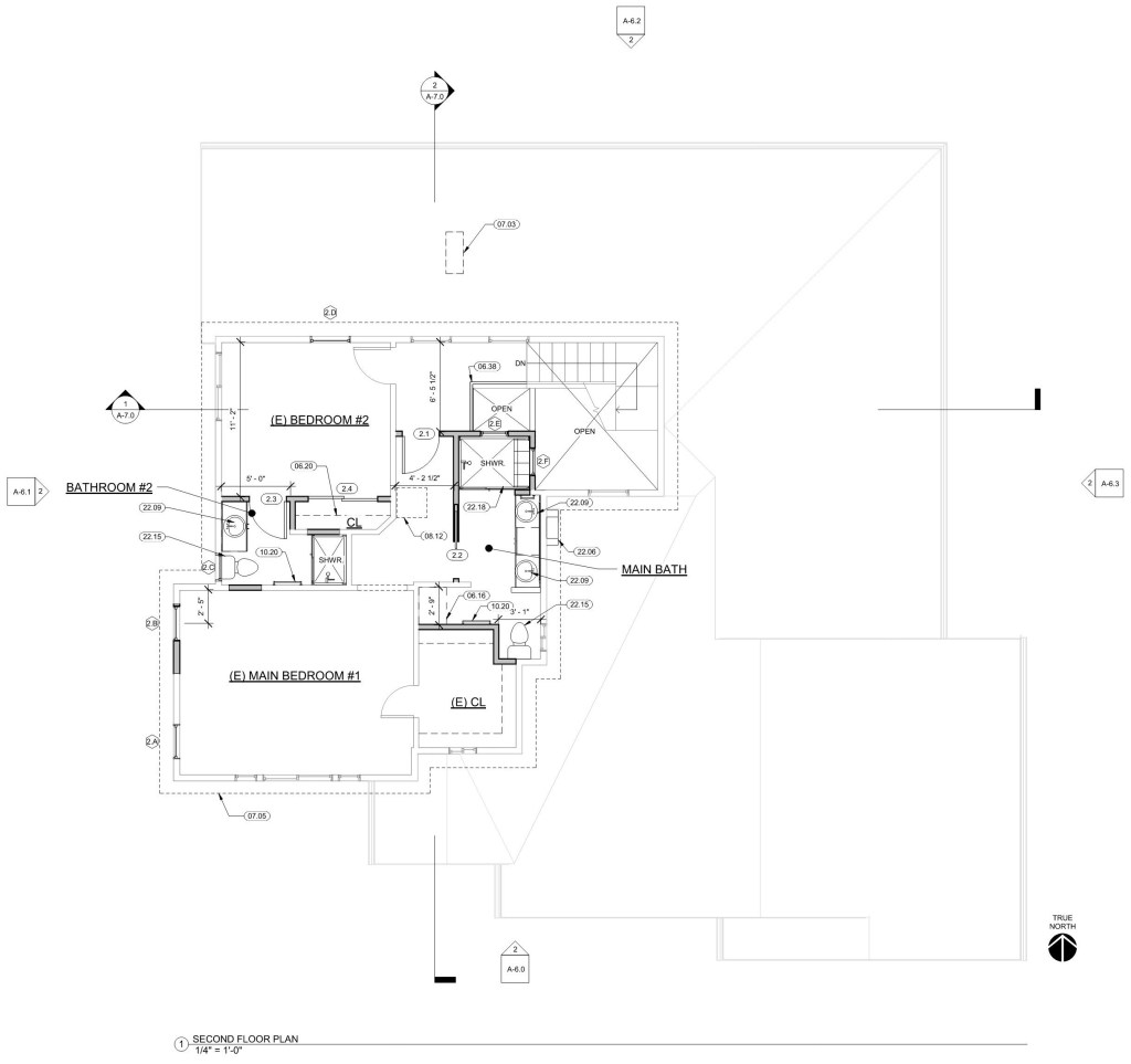
- This project involves combining the existing living room and kitchen spaces. A new island will be installed in the kitchen. The laundry room and powder room will be separated, along with the addition of an office and a mud room. The new powder room will have access from the side yard as well as from the interior of the house. It will be designated to be used when the swimming pool is active in the summer. The bathroom between the third bedroom and the fourth bedroom will be remodeled as well. The existing second-floor bathroom will be remodeled, and an additional bathroom will be added for the second floor.
- Size
- 2,888 SF, Two-story Building
- Kick Off Date
- 06/09/2018
- Completion Date
- 04/14/2019
- Challenges
- The new west facing Nana Wall Systems at the Kitchen was a challenge. We designed a drainage system at the landing for the new sliding door due to the amount of rain that usually gathers on the west side of the house. Additionally, we designed a short canopy to bring shade to the sliding door, but short enough to accommodate and avoid clashing with the existing patio gazebo. An additional tankless water heater was added to the exterior of the second floor, to accommodate the additional bathrooms. The second water heater placement had to be carefully vetted carefully, since it will be accessed through one of the second story windows. Due to the existing second story bathroom being remodeled, we lost some square footage from the existing main bedroom closet.








