- Name
- Single Family Home- Remodel and Addition
- Location
- San Jose, California
- Type and Sector
- RESIDENTIAL ARCHITECTURE, Single Family Home
- Scope
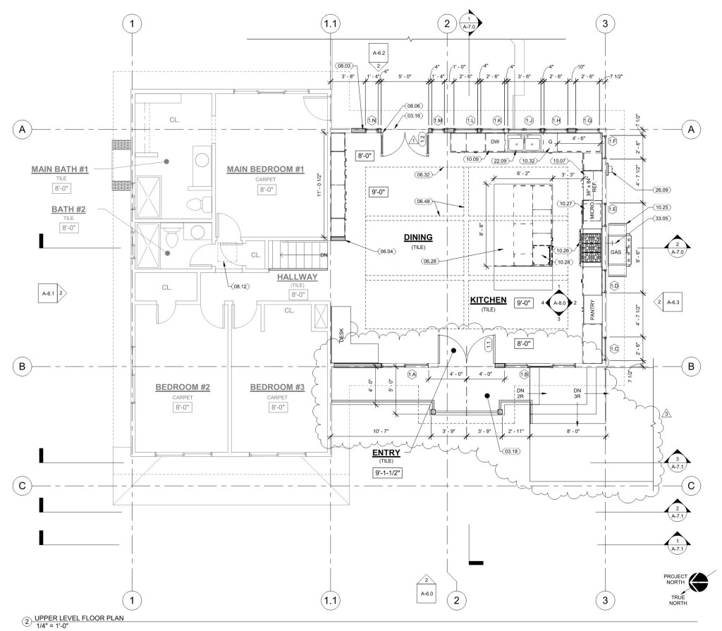
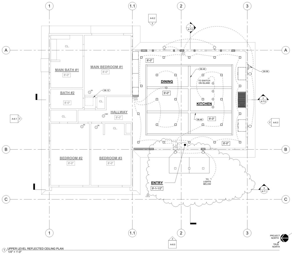
- This project involves an interior remodel of an existing two-story residence. The project will not add any new square footage and does not affect the existing area of the residence. All existing property line setbacks remain. The existing kitchen, dining, and living room areas will be remodeled and combined into one space. The kitchen will be remodeled with new cabinetry, fixtures, and appliances. The front entry will also be remodeled to blend in with the surrounding landscape. In these areas affected by the scope of work, electrical outlets and lighting will be replaced and updated as necessary, as well as any switches affected by the remodeling.
- Size
- 780 SF, Two-story Building
- Kick Off Date
- 07/13/2018
- Completion Date
- 06/15/2020
- Challenges
- The property sits on a very steep hill, which created a design challenge for the front entry and the direction of how the front steps would curve down to the grade level and out to the city sidewalk. We had to make sure that the retaining wall that held back the soil on the hill would stay in place during construction. Building out the front of the house was a challenge, since the property in front of the house started to slope down towards the street.











