- Name
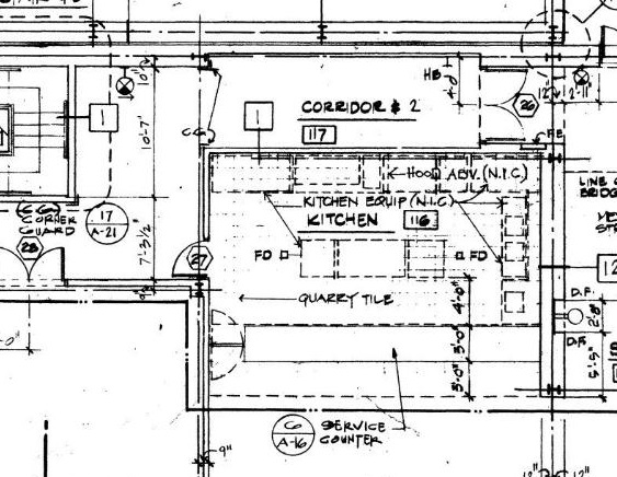
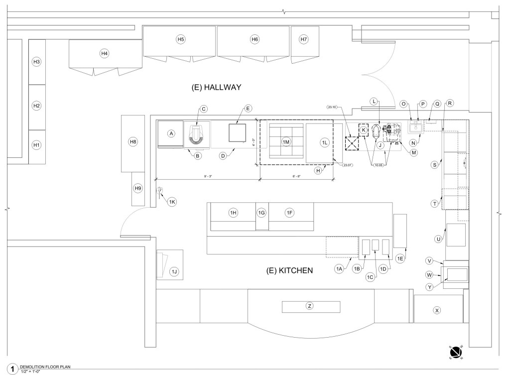
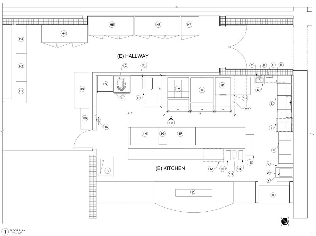
- Children’s Discovery Museum- Kitchen Remodel
- Location
- San Jose, California
- Type and Sector
- INSTITUTIONAL – EDUCATIONAL ARCHITECTURE, Museums
- Scope
- New kitchen layout to accommodate new commercial kitchen ovens.
- Size
- 60 SF, One-story Building
- Kick Off Date
- 11/01/2018
- Completion Date
- 11/26/2018
- Challenges
- Fitting the new commercial ovens into the existing space with all required clearances satisfied.











