- Name
- Windmill Springs Elementary School Modernization
- Location
- San Jose, California
- Type and Sector
- INSTITUTIONAL – EDUCATIONAL ARCHITECTURE, Schools K-12
- Scope
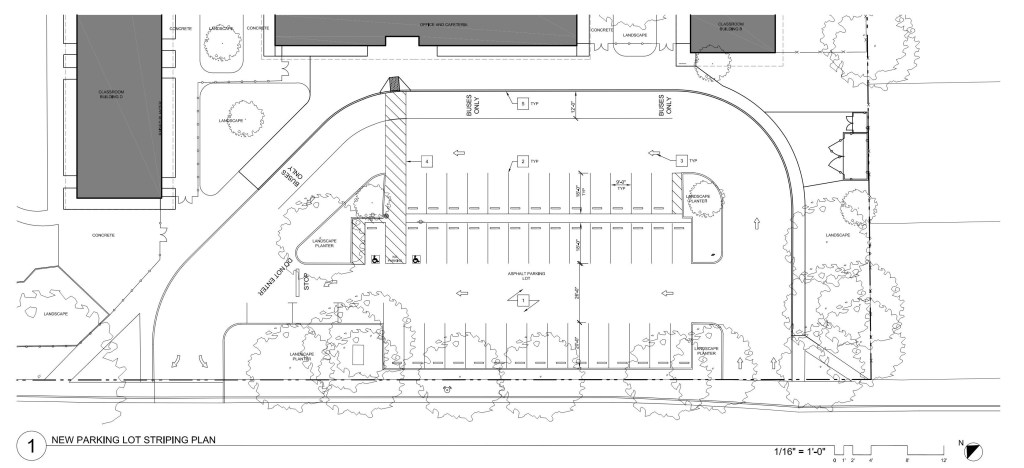
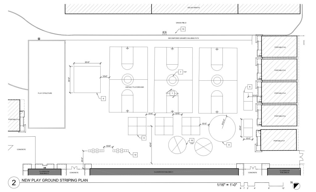
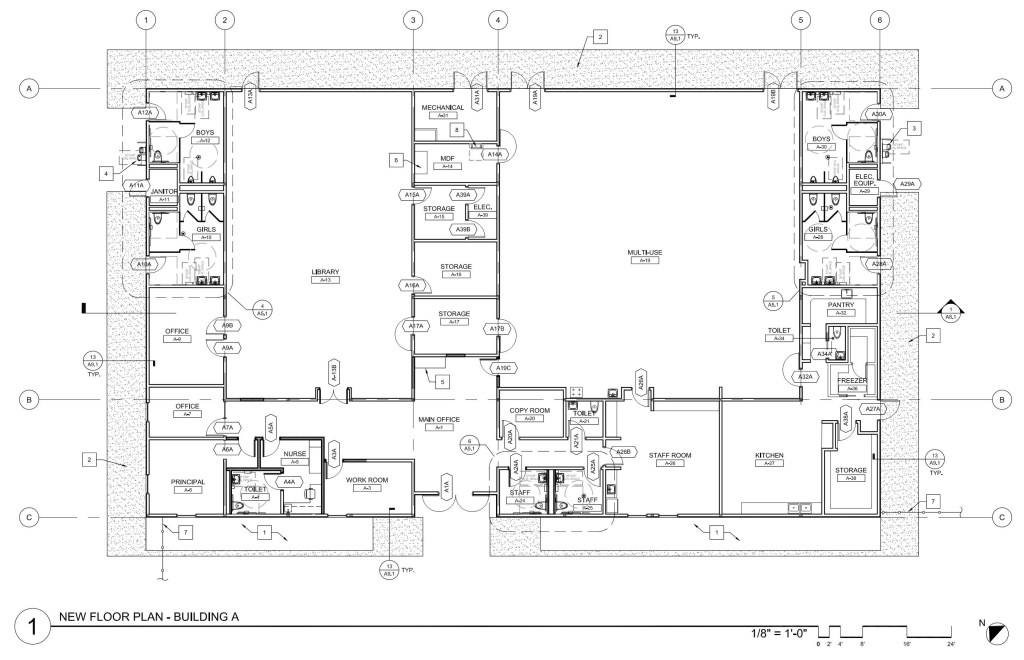
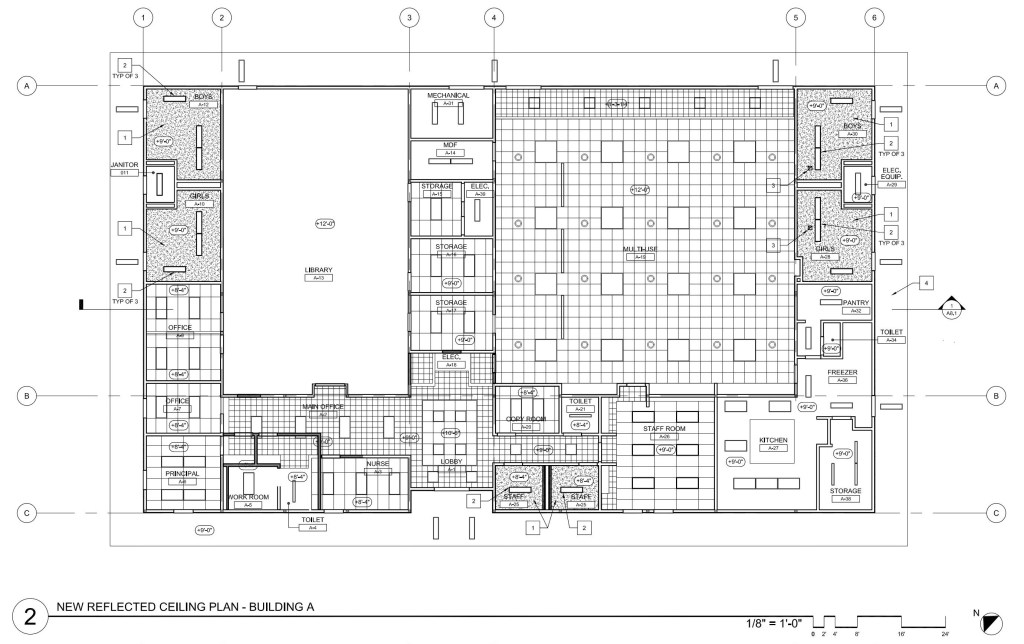
- New Roofing of all permanent structures at Buildings A, B, C and D. All Interior electrical, low voltage and telecommunication will be upgraded. New fire alarm throughout all of the buildings. New trash, can wash area and gas meter enclosure to be installed. Sidewalk removal and replacement for ADA Compliance and ADA Parking Stall upgrades. Restroom renovation of staff and student restrooms at Building A, and an overlay of existing asphalt playground. Replacement of tan bark with new fall protection material around existing play structure. Painting of the entire school.
- Size
- 31,614 SF, One-story Buildings
- Kick Off Date
- 09/10/2016
- Completion Date
- 12/30/2016
- Challenges
- Construction timeline was tight due to the expectation that this construction would start and finish during the school’s winter break.














