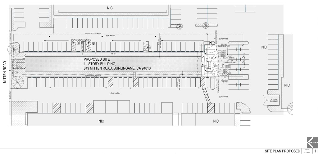
- Name
- 849 Mitten Road, New Generator Enclosure
- Location
- Burlingame, California
- Type and Sector
- COMMERCIAL ARCHITECTURE, Office Building
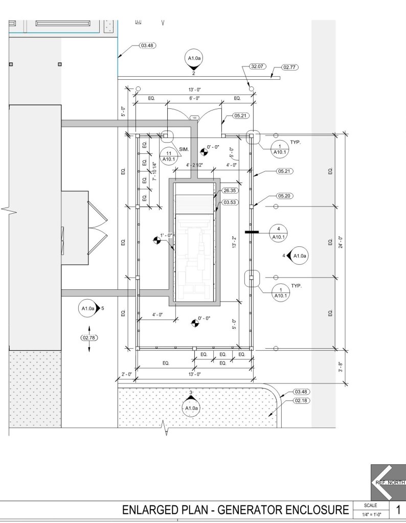
- Scope
- Tenant improvement for new generator and enclosure. Redesign all ADA parking stalls and striping. Relocate four standard parking stalls due to the new generator taking up four existing standard parking stalls.
- Size
- 317 SF, One-story Building
- Kick Off Date
- 09/02/2021
- Completion Date
- 08/19/2022
- Challenges
- Relocating four standard parking stalls due to the installation of the new generator. The height of the elevated generator needed enough clearance from the existing roof line, and meet code compliance.








