- Name
- Serra Park Auxiliary Restroom
- Location
- Sunnyvale, California
- Type and Sector
- URBAN DESIGN AND PLANNING, Plazas and Parks
- Scope
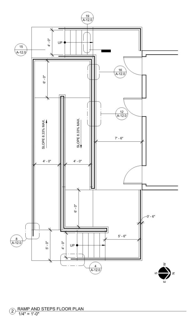
- The project involves the installation of a new restroom building containing two bathrooms and a storage room. The existing restroom building will be converted into a storage room, and the existing electrical room will remain. The existing main electrical panel will be replaced inside the existing restroom building. An ADA ramp will be designed and power will be needed for the new building.
- Size
- 245 SF, One-story Building
- Kick Off Date
- 06/03/2019
- Completion Date
- 09/28/2019
- Challenges
- The new location of the restrooms needed excavation, and civil helped guide the new utilities to the new building. The accessible path and ramp was designed carefully so it would take up the least amount of space so the park could still retain as much of its natural landscape as possible.











