- Name
- Davita Dialysis Clinic- Tenant Improvement
- Location
- Federal Way, Washington
- Type and Sector
- HEALTHCARE ARCHITECTURE, Dialysis Clinic
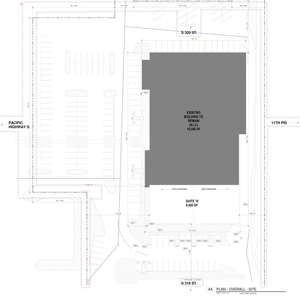
- Scope
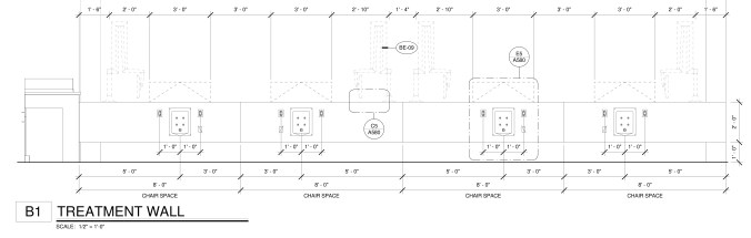
- New interior tenant improvement for new dialysis clinic in existing suite of existing building. The scope of the project included new light fixtures with new ceiling, new signage and treatment stations. A new cooling tower and rooftop mechanical unit will also be installed. The interior renovation also included new treatment stations with substantial underground work along with new utility services were required to complete the project. The finished project consisted of sheet vinyl flooring, acoustical ceilings, and painted accent walls.
- Size
- 8,181 SF, One-story Building
- Kick Off Date
- 05/10/2021
- Completion Date
- 08/11/2023
- Challenges
- Coordinating electrical and power requirements to meet project requirements. The R.O. System (Reverse Osmosis System) needed to be vetted and designed at the early stage of design. An R.O. System is the water treatment system that is directly tied into patient safety, infrastructure needs, and regulatory compliance. RO systems have very specific space, plumbing, and electrical requirements, often needing, dedicated mechanical rooms, redundant plumbing lines, specific water supply pressure, temperature, and drainage capacity and backflow preventers.











