- Name
- Single Family Home- Remodel and Addition
- Location
- Campbell, California
- Type and Sector
- RESIDENTIAL ARCHITECTURE, Single Family Home
- Scope
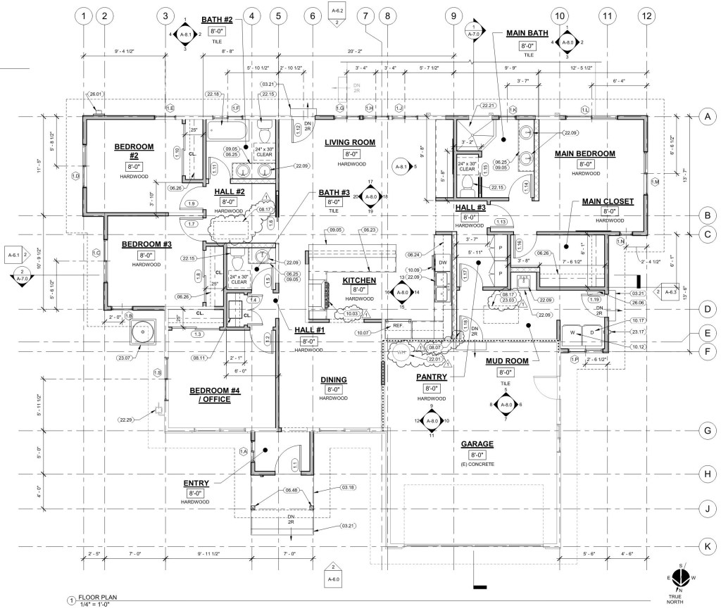
- This project involves a remodel and addition to an existing single-story residence. The project will add 433 square feet and remodel 1,446 square feet. The existing kitchen, dining, and living room areas will be reconfigured and remodeled, along with the existing bathrooms. New cabinetry, fixtures, and appliances will be updated. The existing bedrooms will also be reconfigured and remodeled. A new mud room/laundry room will be added, as well as a new bedroom and powder room. In these areas affected by the scope of work, electrical outlets and lighting will be replaced and updated as necessary, and any switches affected by the remodeling.
- Size
- 1,879 SF, One-story Building
- Kick Off Date
- 10/20/2018
- Completion Date
- 01/20/2020
- Challenges
- The parcel is located in a cul-de-sac, which makes the overall footprint of the house a challenge to work with. We had to still maintain the setbacks for fire clearance and code compliance, but utilize as much space as we could at the side yards.














