- Name
- Equipment Rental Company- Voluntary Accessibility Upgrades
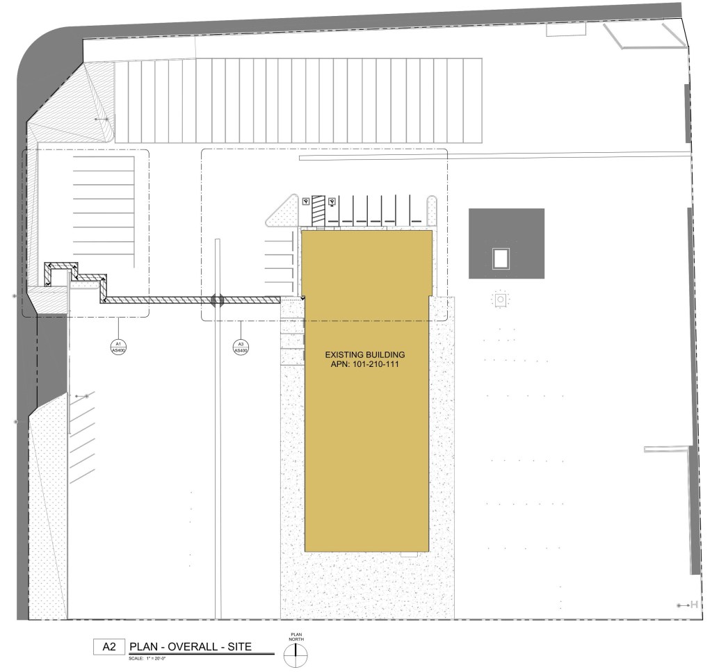
- Location
- Montclair, California
- Type and Sector
- INDUSTRIAL ARCHITECTURE, Service and Operations Architecture
- Scope
- Voluntary accessibility upgrades for an existing ±12,250 SF building in Montclair. The primary scope of work will focus on upgrading the existing accessible stalls and creating a new path of travel from the city sidewalk.
- Size
- 3,990 SF, One-story Building
- Kick Off Date
- 11/26/2024
- Completion Date
- 06/15/2025
- Challenges
- Designing the ADA path over an existing trench in the parking lot.











