- Name
- SOW 508- M2 AW Tank Replacement
- Location
- Santa Clara, California
- Type and Sector
- INDUSTRIAL ARCHITECTURE, Acid Waste Pit
- Scope
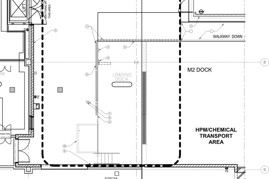
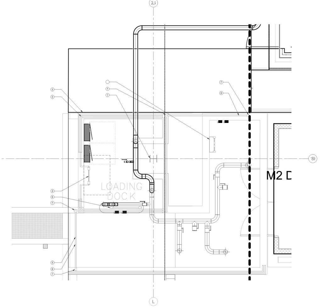
- Relocate existing lift stations from existing chemical storage room to the M2 loading dock corner adjacent to the ramp. Arrange lift stations, tanks, and pumps in new area. New trench to be designed to connect existing trench from the fab to the lift stations. Existing lift station to be demolished after new system is commissioned and all the existing tools and laterals are switched over. Revisions to schematic design is required due to the revised egress path proposed.
- Size
- 345 SF, One-story Building
- Kick Off Date
- 04/08/2022
- Completion Date
- 06/28/2025
- Challenges
- Providing access to lower level of the pit and enough clearance for the maintenance crew to access underground chemical tanks. The lower level of the pit also had to be open and not enclosed per code restrictions. The new walkable grating was required to support live loads of up to 32,000 pounds to accommodate a small forklift transporting chemical barrels across the surface.











