- Name
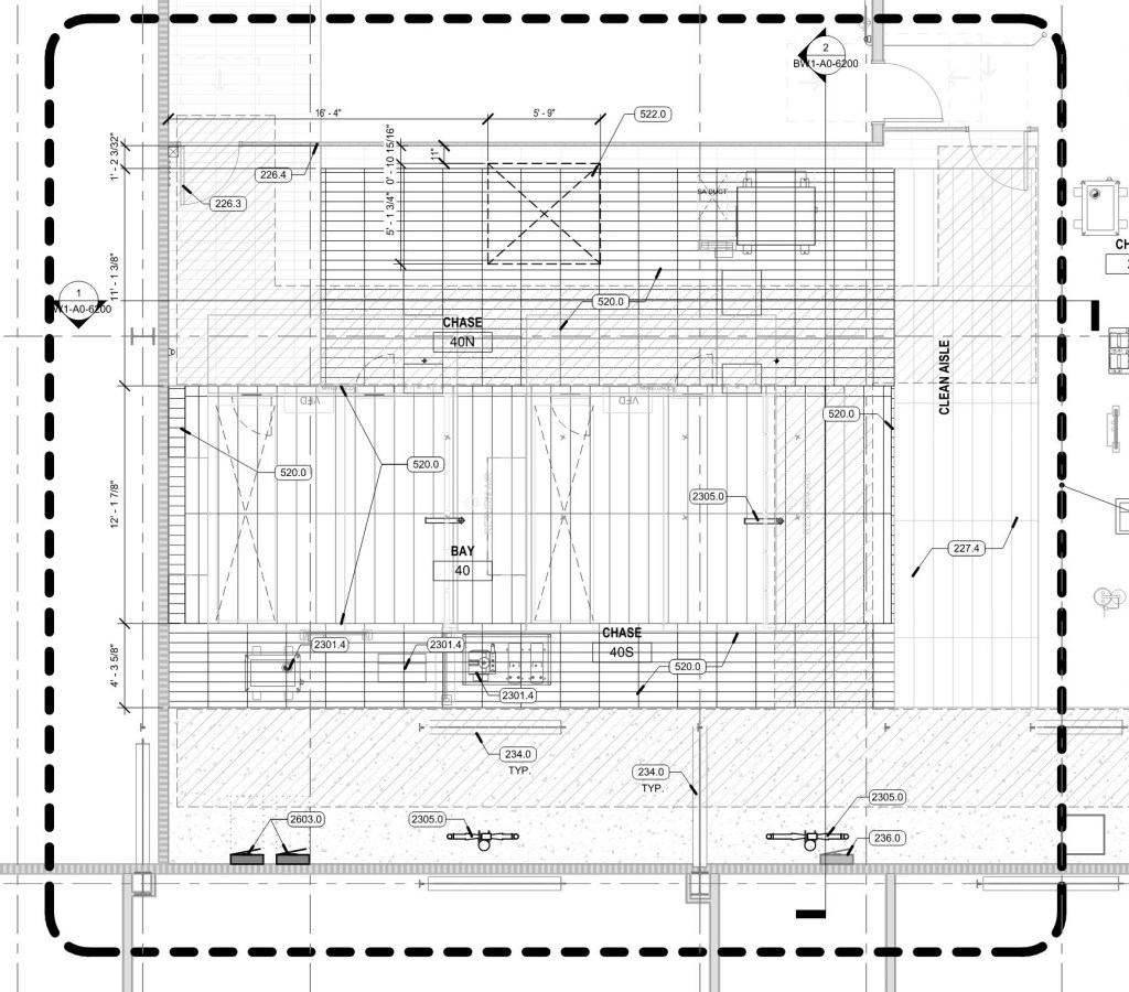
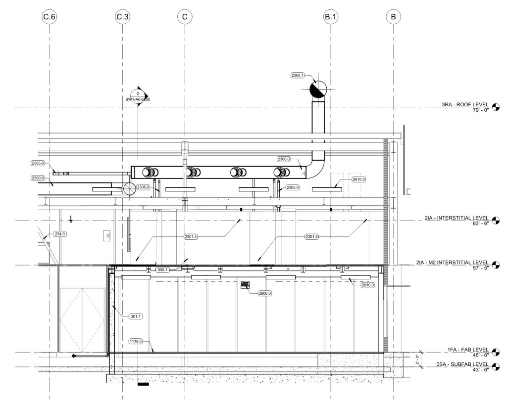
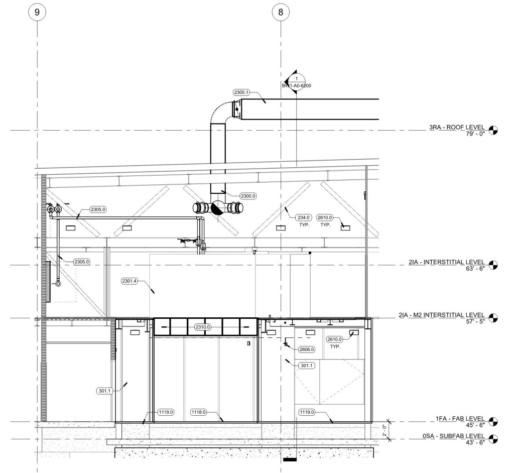
- SOW 703- Area 40B Conversion
- Location
- Santa Clara, California
- Type and Sector
- INDUSTRIAL ARCHITECTURE, Clean Room
- Scope
- Install a new hoist opening, new grating, and new plascore walls to separate the new bay from the new chases. Install new platforms over future plenum, with a new door from the existing corridor to the new chases. New mechanical ducts, condensate lines, new electrical feeders, new lights will be designed to accommodate the new equipment. All networking needs for this project will be coordinated with the client and trades. Add a new curb and perimeter to the new hoist opening.
- Size
- 2,240 SF, One-story Building
- Kick Off Date
- 08/15/2023
- Completion Date
- 09/26/2024
- Challenges
- This project was redesigned once after the Plan Check Set was sent into Santa Clara Building Department. Aligning the mechanical units in the Interstitial Level with the First Floor was a challenge due to the distance and space constraints.














