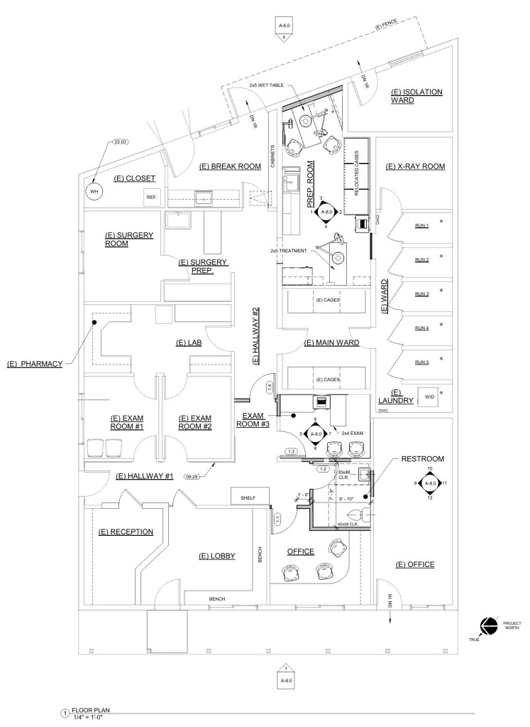
- Name
- Village Square Woodside Veterinary Hospital
- Location
- Redwood City, California
- Type and Sector
- HEALTHCARE ARCHITECTURE, Veterinary Hospital
- Scope
- Design a new unisex restroom, add an additional new exam room, and redesign the existing Prep Room to accommodate new surgical tables
- Size
- 2,626 SF, One-story Building
- Kick Off Date
- 03/25/2019
- Completion Date
- 11/26/2019
- Challenges
- We needed to fit all new surgical tables in the new Prep Room with all required clearances satisfied. Space constraints for the new restroom and the new exam room required a few design iterations.











