- Name
- Gilroy Library- Plaza Remodel
- Location
- Gilroy, California
- Type and Sector
- INSTITUTIONAL – EDUCATIONAL ARCHITECTURE, Library
- Scope
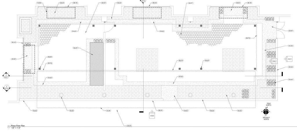
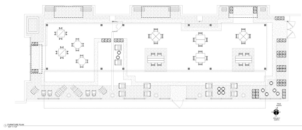
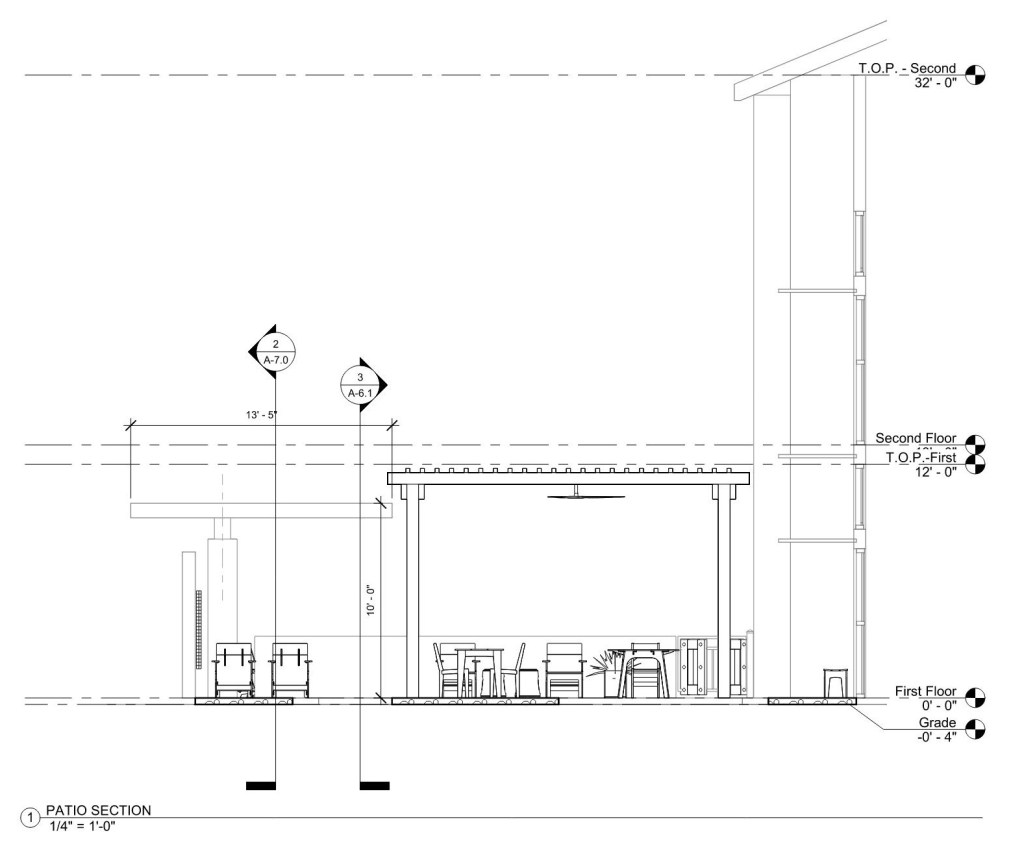
- This project involves the installation of a new shade structure at the existing patio area south of the library. The new shade structures will replace existing fabric canopies. The scope will include new paving around existing paved areas, new plants, and new outdoor furniture for library users.
- Size
- 3,231 SF, Two-story Building
- Kick Off Date
- 10/15/2018
- Completion Date
- 09/20/2022
- Challenges
- The new gazebos needed power so that the new ceiling fans could be turned on when the weather permitted. We needed to create more seating under shaded areas, since the library projected more users in the next few years. Temperature concerns were a priority since this side of the library can get hot on warm days.











