- Name
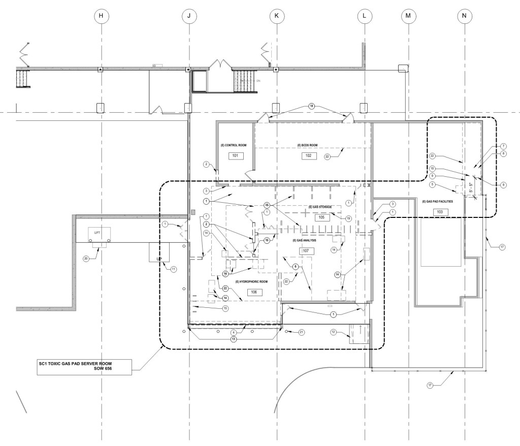
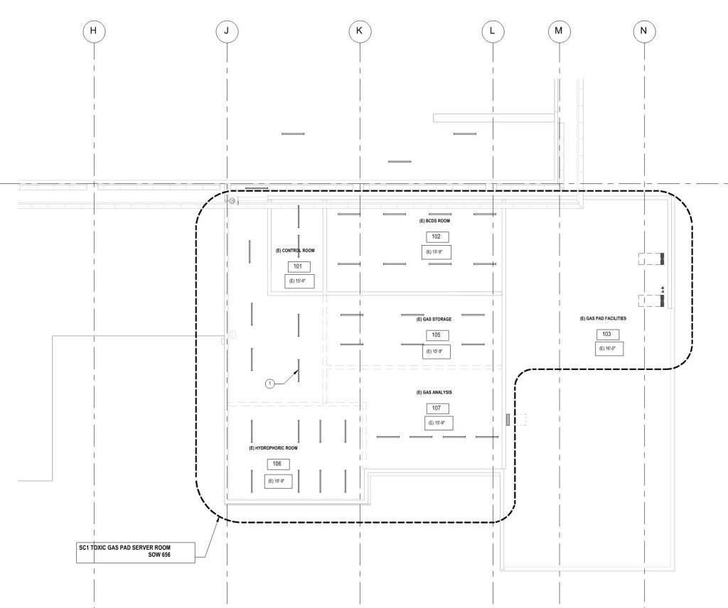
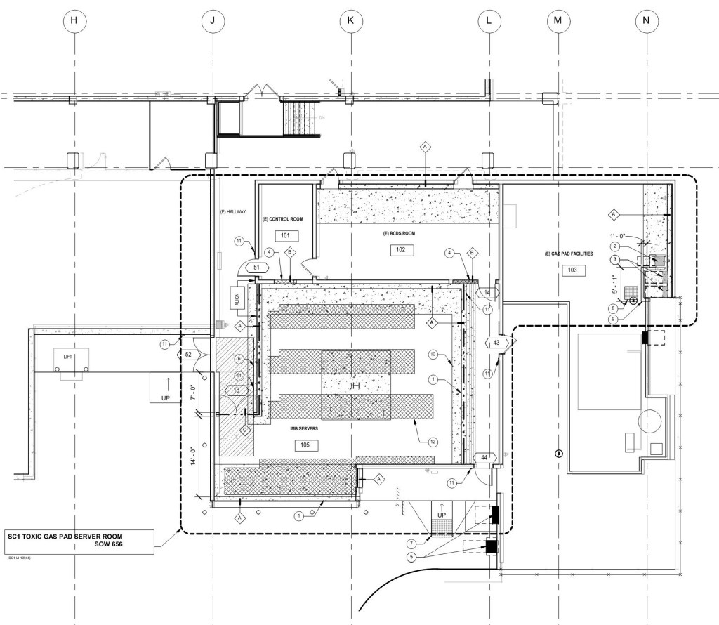
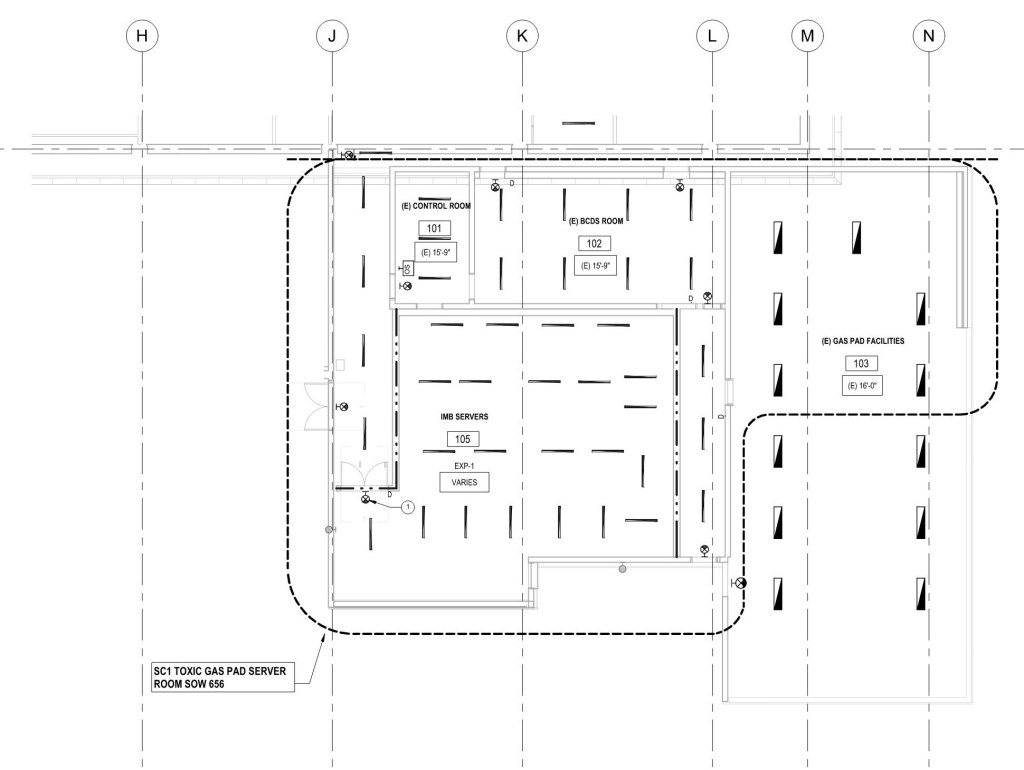
- SOW 656- SC1 Toxic Gas Pad Server Room
- Location
- Santa Clara, California
- Type and Sector
- INDUSTRIAL ARCHITECTURE, Data Center
- Scope
- Design, construct, and convert three existing rooms into a new server room for new servers at the existing building. This will include new flooring, new light fixtures, etc. Design and construct new concrete service trench with traffic rated covers for chilled water lines under the pedestrian pathway.
- Size
- 4,327 SF, One-story Building
- Kick Off Date
- 08/11/2022
- Completion Date
- 11/18/2024
- Challenges
- Design was changed after the Plan Check set was sent into Santa Clara Building Department. There were two additional design changes, to increase the number of units the owner wanted to install into the new space. Existing building was used as an H5 Chemical storage space that was converted to a room that houses new servers. New egress paths were designed due to the elimination of existing rooms and exits.











