- Name
- Single Family Home – Accessory Dwelling Unit Addition
- Location
- San Jose, California
- Type and Sector:
- RESIDENTIAL ARCHITECTURE, Affordable Housing
- Scope
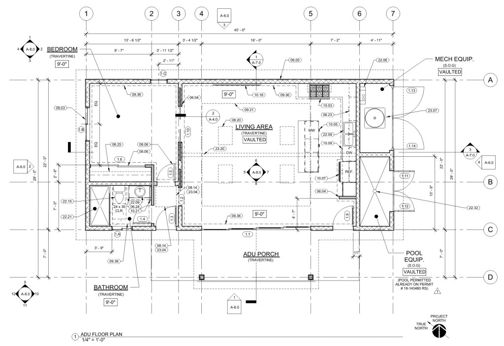
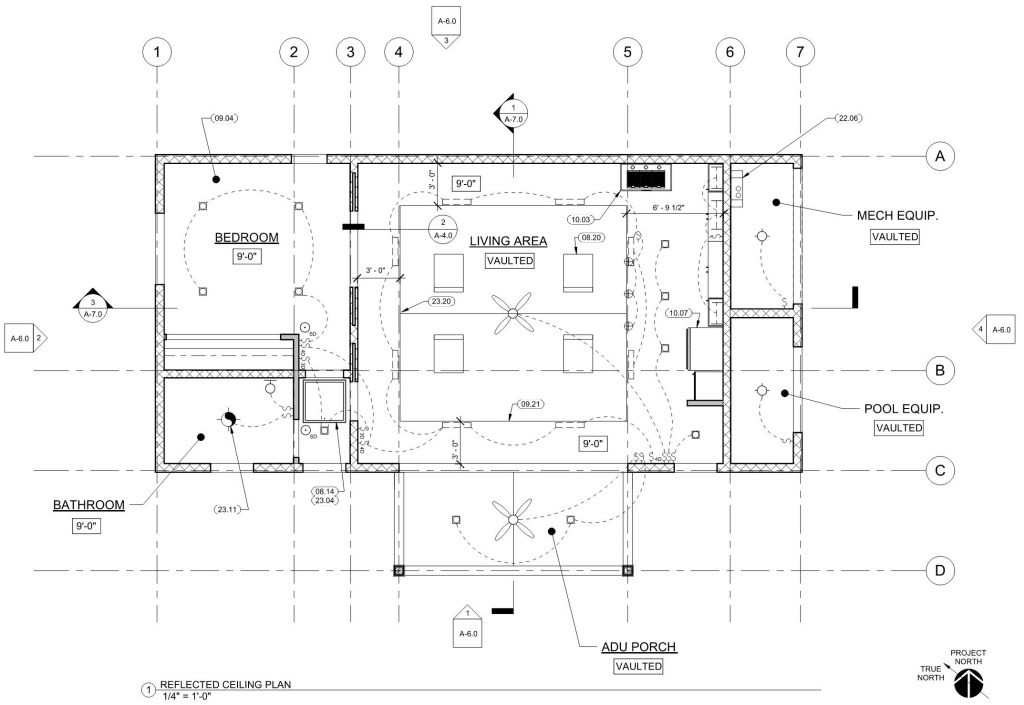
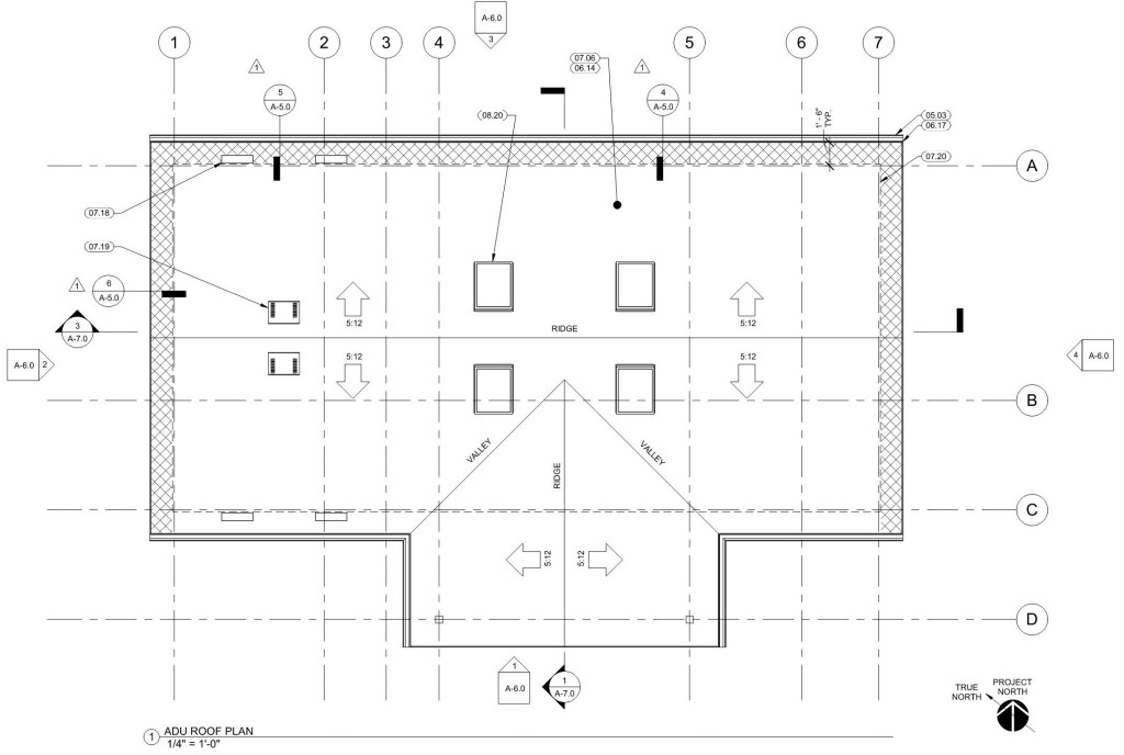
- This project involves the construction of a new build-up accessory dwelling unit (ADU) at the backyard of the property. The ADU will have one bedroom, one bathroom, and an open living room and kitchen area. The ADU will match the character, look, and feel of the existing home.
- Size
- 894 SF, One-story Building
- Kick Off Date
- 10/05/2018
- Completion Date
- 08/11/2019
- Challenges
- Construction materials delivery had to be delivered through the rear perimeter of the fence. A section of the fence had to be removed in order to deliver the larger materials. One of the requests was that the rear windows of the ADU would not allow neighbors to view into the ADU. The owner wanted to maintain his privacy.











