- Name
- Equipment Rental Company- Accessible Compliance Upgrades
- Location
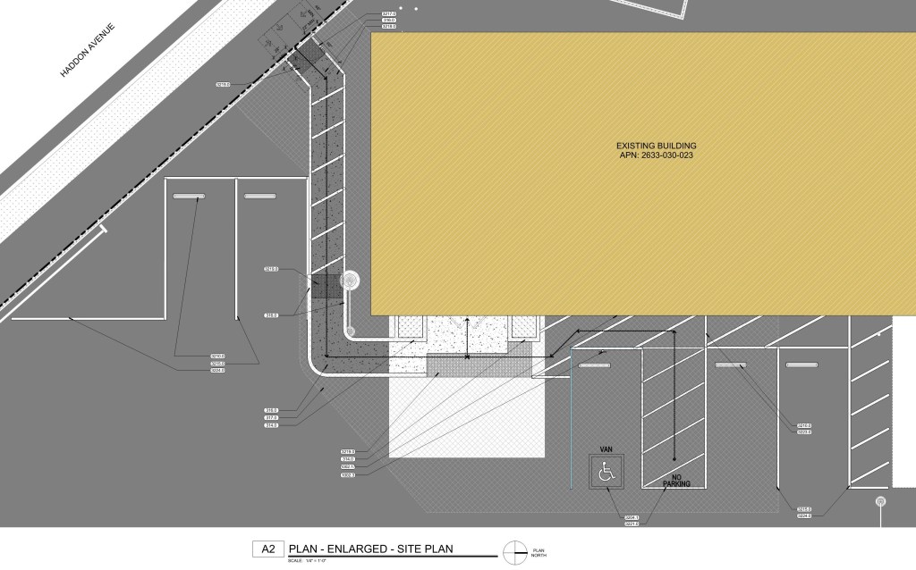
- Sun Valley, California
- Type and Sector
- INDUSTRIAL ARCHITECTURE, Service and Operations Architecture
- Scope
- Site and tenant improvements for an existing ±5,000 SF building in Sun Valley. The primary scope of work will focus on upgrading existing accessible stalls, upgrading tactile exit signage and accessibility modifications to the service counter and creating a new path of travel from the city sidewalk.
- Size
- 2,680 SF, One-story Building
- Kick Off Date
- 11/22/2024
- Completion Date
- 05/28/2025
- Challenges
- New accessible path to the existing sidewalk that will include a new pedestrian gate. Redesigning the new ADA stalls to code compliance.











