- Name
- Arpeggio Hotel- Remodel of Existing Building
- Location
- 1540 Broadway, Oakland, CA 94612
- Type and Sector
- HOTEL AND HOSPITALITY ARCHITECTURE, Commercial Project
- Scope
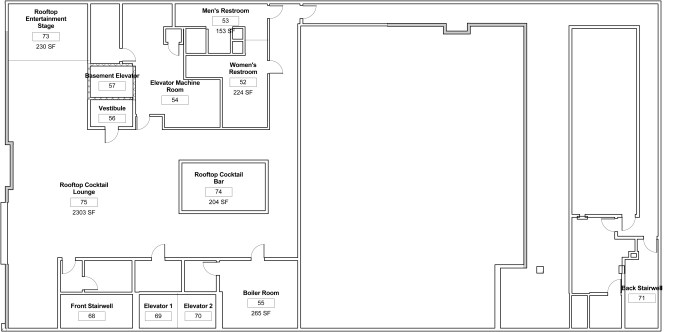
- Hotels Group International (HGI) has purchased 1540 Broadway, Oakland, CA 94612 (in the downtown area of Oakland). The property currently has a small two-story retail structure. HGI plans to demolish the existing structure, and has hired an architect to develop plans for a new downtown “boutique” hotel. The hotel will primarily serve business guests, but will also serve tourists as well. The hotel will have eight stories, plus a rooftop “sky bar”. The sky bar will provide cocktails, musical entertainment, and light hors d’oeuvres from the restaurant kitchen. The building will have two basement levels for parking.
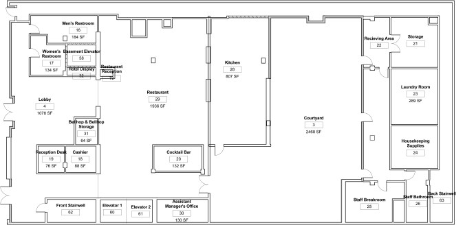
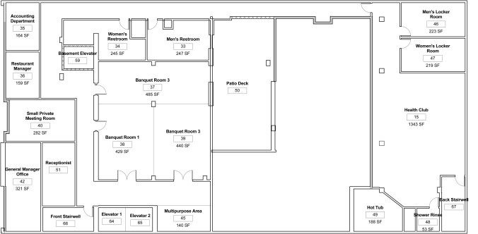
- The hotel’s public spaces and back-of-house operations will include lobby, restaurant, cocktail lounge, ballroom, banquet room, meeting room, health club and executive offices. This hotel will follow an “extended- stay” model, meaning that it target executive business guests who are visiting Oakland for extended periods of time. Therefore, the guestrooms are designed as “second-home” condominium units. A combination of studio and 1-bedroom units will be provided, each with its own kitchen.
- Size
- 9,500 SF (Existing Restaurant), Twenty-Four-story Building
- Kick Off Date
- 01/21/2014
- Completion Date
- 05/11/2014
- Concept
- Oakland, California was the focal point of the West Coast Blues and Jazz Scene. It was piano dominated, accompanied by guitar solos; a combination of jazz blues and jump blues. Jazz music is a language of the emotions and it is not something that can be defined through blunt instruments. Through the expression of curved walls and light emitting from behind, both create an ebb and flow of sound as it walks patrons through the lobby, and towards the restaurant. The lights create movement for the hotel patrons as they guide them through the lobby, down the hallway, towards the courtyard.























